Первичная продажа



4 акции
Только на Циан
Онлайн-бронирование
сдача ГК: 2 кв. 2029 года
5 655 317 ₽
146 170 ₽/м²
ЖК "Алые Паруса" — жизнь у воды
ул. МОПРа, 1б
Левобережный район
Монолит, 17 этажей | комфорт
Сдача: II кв. 2029
Жилой комплекс рядом с парком "Алые Паруса" и водохранилищем. До центра — 1015 минут.
Преимущества:
• Локация у воды и парка
• Видовые квартиры
• Благоустроенный двор
• Прогулочные зоны
• Подземный паркинг
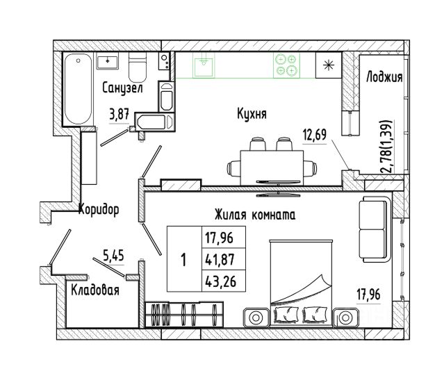
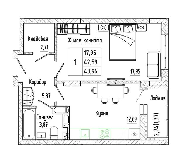
Квартиры:
1-, 2- и 3-комнатные квартиры с продуманными планировками и панорамными окнами.
Отделка:
Черновая / предчистовая / чистовая
Инфраструктура:
Парк, магазины, школы, детсады, транспорт в шаговой доступности.
Звоните — подберём квартиру под ваш запрос.
Цена указана при 100% оплате. Не оферта.
* Стоимость квартир указана при оплате за счет ипотечных средств. Не является публичной офертой.

































































































































































