


101 700 ₽/м²
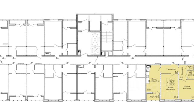
Новый жилой комплекс в Рамони - жемчужине Воронежского Края. Развитая инфраструктура, насыщенная история и культура, живописные природные места - все это можно найти здесь. Идеальное место для семей с детьми! Здесь комфорт города встречается с вдохновением природы! Квартиры в предчистовой отделке. Инфраструктура Образовательные учреждения: в пешей доступности расположен лицей им. Ольденбургской и 3 рамонских детских сада. Спортивные объекты: рядом с ЖК крупный спортивный комплекс "Лидер", стадион "Юность" с футбольным полем, бассейн "Жемчужина" и другие спортивные площадки. Торгово-развлекательные объекты: застройщиком планируется строительство торгового центра на территории комплекса. В 5 минутах ходьбы уже находятся сетевые супермаркеты, магазины и местный рынок. Природные зоны: живописные аллеи и парки дарят возможность ежедневно наслаждаться природой и свежим воздухом. А для длительных прогулок рядом находятся лесные массивы и живописные берега реки Воронеж с панорамными видами. Современная архитектура Проект отличается уникальным архитектурным обликом, сочетающим декоративные элементы с большими окнами и витражами лоджий и балконов, что создает благоприятное ощущение внутри каждой квартиры. Просторные 1-,2- и 3-комнатные квартиры с высотой потолков 2,74 метра обеспечат максимальный комфорт и уют. Застройщиком запланирована крышная котельная, горизонтальное отопление и счетчики тепла. Отделка предчистовая: Стяжка пола; Разводка электрики; Радиаторы отопления; Штукатурка несущих стен и монолитного каркаса. Низкая плотность застройки Средняя этажность (6-7 этажей), небольшое число квартир (253 квартиры на участке 2.3 гектара). Показатель плотности в 4-5 раз ниже городской - живите комфортно с позитивной энергетикой. Продуманные планировки Разнообразные варианты от 39.7 до 89.9 кв.м. Отсутствие бесполезных зон - каждый метр задействован с пользой. Окна на обе стороны. Большая кухня - вам всегда будет просторно. Охраняемая территория Территория ЖК огорожена, закрыта от посторонних и находится под постоянной охраной - безопасность вас и ваших близких. Современное благоустройство Индивидуальный, созвучный с архитектурой, проект озеленения от ландшафтной студии, эстетичное уличное освещение, детские и спортивные площадки - приятные прогулки каждый день. Удобство для автомобилистов и расположение Для автовладельцев предусмотрены парковки как на придомовой территории, так и за ее пределами. Вы всегда найдете место для своего автомобиля! Кроме того, благодаря удобной транспортной развязке, вы легко и быстро доберетесь до любой точки Воронежа и окрестностей. Близость федеральной трассы М4 "Дон" обеспечивает отличную связь с основными транспортными магистралями региона. А если у вас нет автомобиля, автобусная остановка находится в 2 минутах ходьбы от нашего ЖК. Активный отдых и спорт В шаговой доступности находится Рамонский районный центр физической культуры и спорта. Здесь вы сможете заниматься спортом круглый год. Также в вашем распоряжении бу



































































































