


150 000 ₽/м²
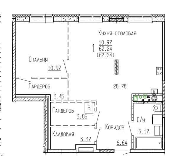
Многоквартирный жилой дом по ул. Сергея Лазо 9 предлагает современные архитектурные решения, дизайнерскую отделку мест общего пользования, благоустроенную закрытую территорию с ландшафтным дизайном. Очевидным преимуществом дома является его расположение в зоне тихого частного сектора. В шаговой доступности вся необходимая инфраструктурой школа, детский сад, магазины и рынок, остановки общественного транспорта. При реализации проекта многоквартирного жилого дома будут использованы высококачественные строительные материалы, современные строительные технологии. Увеличенная площадь остекления и трехметровые потолки сделают квартиры светлыми и просторными. • Поквартирное отопление; • Премиальная отделка мест общего пользования; • Лифт индивидуального исполнения.



































































































































