Мы используем куки-файлы. Соглашение об использовании
С мебелью
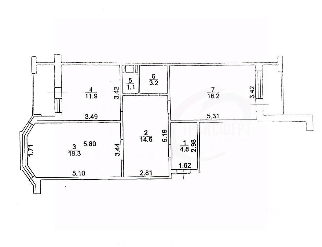
Общая площадь73,1 м²
Жилая площадь37,5 м²
Площадь кухни11,9 м²
Этаж16 из 17
Продаётся крупногабаритная 2-комнатная квартира с видом на озёра в ЖК "Звёздный квартал" Ремонт сделан для себя. Заезжай и живи! О квартире, в которой хочется остаться: Идеальная планировка для семьи: здесь есть и уединённые спальни, и общее пространство для отдыха. Всё продумано до мелочей — вам остаётся только заехать с вашими личными вещами. Что делает эту квартиру особенной: - Свет и панорама: Гостиная с эркером и окнами на озёра + спальня с выходом на лоджию и видом на Воронежское водохранилище. Ваше утро начинается с красоты! - Пространство для семьи: Уникальный холл 14,6 кв.м — отдельная зона для игр ребёнка и отдыха родителей. Телевизор, диван, свои "миры" для каждого. - Качественная отделка "на века": Ремонт для себя с дорогими материалами: массив дерева, плитка под мрамор, влагостойкий ламинат, дизайнерская плитка в санузлах. - Бонусы для комфорта: Оставляем встроенную кухню с барной стойкой и техникой. Вам не придётся тратиться на мебель! О районе: природа и инфраструктура рядом. ЖК "Звёздный квартал" — это экология и удобство: - Огромная лесопарковая зона с велодорожками — ваш ежедневный фитнес на свежем воздухе. - В двух остановках — набережная с кафе и беседками для выходных с друзьями. - В шаговой доступности: "Пятёрочка", детский сад, школа, поликлиника и ТЦ "Ласточкино". - До центра — 30 минут на транспорте (остановка "Звёздный квартал" через дорогу). Детали для вашего спокойствия: - Кирпичный дом, 2 подъезда, безопасные переходы между этажами. - В собственности более 5 лет (чистые документы, полная цена в договоре). - Рассмотрим разумный торг для серьёзных покупателей. Не откладывайте своё "место силы"! Позвоните, чтобы увидеть квартиру лично и понять: это оно — ваше новое гнёздышко!
Позвоните автору
Вам ответят на все вопросы

О квартире

Тип жилья

Вторичка

Общая площадь

73,1 м²

Жилая площадь

37,5 м²

Площадь кухни

11,9 м²

Санузел

2 раздельных

Балкон/лоджия

1 лоджия

Вид из окон

Во двор

Ремонт

Косметический

Продаётся с мебелью

Да

О доме

Год постройки

2016

Строительная серия

Индивидуальный проект

Количество лифтов

1 пассажирский, 1 грузовой

Тип дома

Блочный

Тип перекрытий

Железобетонные

Подъезды

2

Отопление

Центральное

Аварийность

Нет

Спросите умного помощника
Получите экспертное мнение о жилье

Расположение

Ипотечный калькулятор
  • Базовая
  • Семейная
  • ИТ-ипотека
  • 20%
  • 30%
  • 40%
  • 50%
лет
  • 10 лет
  • 20 лет
  • 30 лет
Загружаем предложения от застройщика и банков
Помощь риелтора
Проверенный риелтор поможет купить или продать квартиру
6 950 000 ₽
Цена за метр
95 075 ₽/м²
Условия сделки
свободная продажа
Ипотека
возможна
Агентство недвижимости