Мы используем куки-файлы. Соглашение об использовании

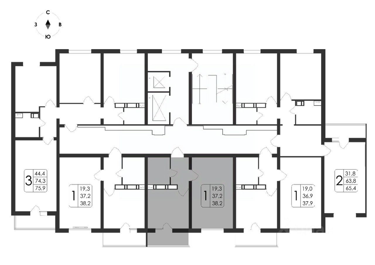
Продается 1-комн. квартира, 38,2 м²

Общая площадь38,2 м²
Жилая площадь19,3 м²
Площадь кухни10,8 м²
Этаж9 из 17
Год сдачи2026
ДомНе сдан
ОтделкаЧистовая
ЖК "Озерки" - квартал с собственной инфраструктурой в рамках концепции "мини-города в городе". - Проектом предусмотрено 68 жилых домов (28 уже сданы) с использованием технологии объемно-блочного домостроения - Комплекс из 17-ти этажных жилых домов - Квартиры с чистовой и черновой отделкой - Лоджии с панорамным остеклением и без остекления - Надежная тепло- и звукоизоляция - Детский сад (проектом предусмотрено строительство ещё одного) - Современная школа - Комплексное благоустройство разнообразие тематических игровых площадок, уютные места отдыха - Просторные открытые парковки (наземные) - Торговый центр, супермаркеты - Социальные объекты рядом до 10 минут на авто до детской и взрослой поликлиник, гипермаркетов "Твой Дом", "Леруа Мерлен" и "Лента" - Остановки общественного транспорта - Развитая транспортная инфраструктура Трейд-ин. Действующие ипотечные ставки и акции уточняйте в офисе продаж застройщика. Услуга собственного менеджера по ипотечному кредитованию - удобная опция для клиентов компании. Специалисты обеспечат вам комфортные условия получения кредита и будут рядом на каждом этапе, возьмут на себя все взаимодействие с банком. Шоу-румы на территории ЖК "Озерки" позволяют своими глазами увидеть, как будет выглядеть ваша квартира, построенная по технологии завода "ВЫБОР-ОБД": оценить габариты, качество отделки и возможности по расстановке мебели. Квартира от застройщика! Строительная компания "ВЫБОР" предлагает купить однокомнатную квартиру в жилом квартале "Озерки" в Воронеже. Успей приобрести квартиру по выгодной цене! Строительная компания "ВЫБОР" — один из ведущих застройщиков в Центрально-Черноземном регионе. Квартиры в новостройках от застройщика.

О квартире

Тип жилья

Новостройка

Общая площадь

38,2 м²

Жилая площадь

19,3 м²

Площадь кухни

10,8 м²

Высота потолков

2,78 м

Вид из окон

На улицу и двор

Отделка

Чистовая

О доме

Количество лифтов

1 пассажирский, 1 грузовой

Тип дома

Панельный

Пандус

Есть

Понравилась квартира — узнайте о ней больше

Застройщик ответит на все вопросы

Отделка квартиры

Чистовая: ремонт сделан, остаётся расставить мебель и заселиться

Варианты отделки в ЖК

  • Чистовая
  • Черновая

О ЖК «Озерки»

  • Сдача комплекса
    Сдача в 2026—2027, есть сданные
  • Застройщик
    СК ВЫБОР
  • Класс
    Эконом
  • Тип дома
    Панельный, монолитный, блочный
  • Парковка
    Гостевая
  • Отделка
    Черновая, чистовая
  • Тип комплекса
    Жилой комплекс
  • Брошюра ЖК
Похоже на то, что вы ищете?

Особенности жилого комплекса

  • Отделка

  • Парковка

  • Внутренний двор

  • Архитектура

Подробнее о жилом комплексе

Акции в ЖК «Озерки»

Узнайте про персональные условия и дополнительные скидки при покупке квартиры у застройщика

Военная ипотека

Ипотечный калькулятор
  • Базовая
  • Семейная
  • ИТ-ипотека
  • 20%
  • 30%
  • 40%
  • 50%
лет
  • 10 лет
  • 20 лет
  • 30 лет
Загружаем предложения от застройщика и банков
Корпус проверен наш.дом.рф
Обновлено 31 марта 2026
  • Нет в реестре проблемных объектов
  • Застройщик не банкрот
  • Есть эскроу счёт
  • Актуальные фото стройки

Ещё квартиры в жилом комплексе

342 квартиры в продаже · Сдача в 2026—2027, есть сданные
Автор объявления

Застройщик «СК ВЫБОР»

Надежный застройщик
Помогаем людям изменить качество жизни и стать счастливее! Мы — «ВЫБОР». Одна из лидирующих строительных компаний в Центрально-Черноземном регионе. Наша визитная карточка — скорость и высокое качество возведения современных жилых домов, а также формирован...
4 857 588 ₽
Цена за метр
127 162 ₽/м²
Условия сделки
свободная продажа
3 школы и 4 детских садаПостроили с 2014 года
Более 2 500 000 м²Ввели в эксплуатацию с 1997 года
5 регионов страныв которых строим жилые дома и коммерческую недвижимость