Мы используем куки-файлы. Соглашение об использовании
Только на Циан
Общая площадь86,2 м²
Участок207 сот.
Материал домаГазобетонный блок
Этажей в доме2
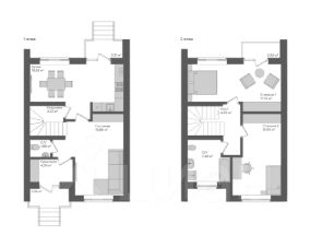
Таунхаус 86,2 м² с собственным земельным участком 207 м² в ЖК Новая Ведуга от ЗАСТРОЙЩИКА Идеальный вариант для семьи: Жизнь за городом без компромиссов рядом с природой и в 9 км от Воронежа Идеальный вариант для семьи, которая хочет тишину, пространство и свой участок, но без потери городской инфраструктуры. Что вы получаете: — Таунхаус 86,2 м² с собственным земельным участком 207 м² — Удобная планировка для семьи — Своя парковка и двор — Кирпичный дом — тепло зимой, прохладно летом О жилом комплексе: ЖК Новая Ведуга — это современный малоэтажный район с продуманной средой для жизни — Закрытая охраняемая территория — Видеонаблюдение и контроль доступа — Собственный пруд с пляжем — Пикник-парк, зоны отдыха, прогулочные аллеи — Детские и спортивные площадки — Чистая экология и тишина Инфраструктура: — Детский сад на территории — Школа — 8 минут — Магазины, аптека, кафе — рядом — До центра Воронежа — ~30 минут Условия покупки: Семейная ипотека от 5%: — Подходит для семей с детьми; — Первоначальный взнос от 20%; — Лимит - 6 000 000 руб. Рассрочка от застройщика: — Первоначальный взнос от 20%; — Срок действия - до окончания строительства (3 кв. 2026); — Индивидуальный график платежей. - Полное сопровождение сделки - Три варианта отделки - Дизайн-проект в подарок Почему это выгодно: — Цена ниже, чем квартира сопоставимой площади — Свой участок = больше свободы и комфорта — Быстрое развитие района рост стоимости Напишите или позвоните — подберем лучший вариант, расскажем по планировкам и поможем одобрить ипотеку
Позвоните автору
Вам ответят на все вопросы

О доме

Площадь

86,2 м²

Материал дома

Газобетонный блок

Состояние дома

Нужен ремонт

Количество этажей

2

Об участке

Площадь

207 сот.

Категория земель

Земли населённых пунктов

Статус участка

Индивидуальное жилищное строительство

Коммуникации и удобства

Санузел

1 в доме

Электричество

Есть

Газ

Нет

Дополнительно

Терраса Охрана

Спросите умного помощника
Получите экспертное мнение о жилье

О КП «Новая Ведуга»

Класс

Комфорт

Всего объектов

3

Объектов в продаже

3

Расположение

Подпишитесь на объявления в этой локации
Мы сообщим, как только поблизости появится что‑нибудь новенькое
Ипотечный калькулятор
  • Базовая
  • Семейная
  • ИТ-ипотека
  • 20%
  • 30%
  • 40%
  • 50%
лет
  • 10 лет
  • 20 лет
  • 30 лет
Загружаем предложения от застройщика и банков
Агентство недвижимости
Суперагент
Хотите продать недвижимость?Разместите объявление на ЦианРазместить
8 762 230 ₽
Цена за метр
101 650 ₽/м²
Ипотека
возможна
Агентство недвижимости
Суперагент
На Циан
менее года
Объектов в работе
6