89 550 ₽/м²
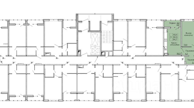
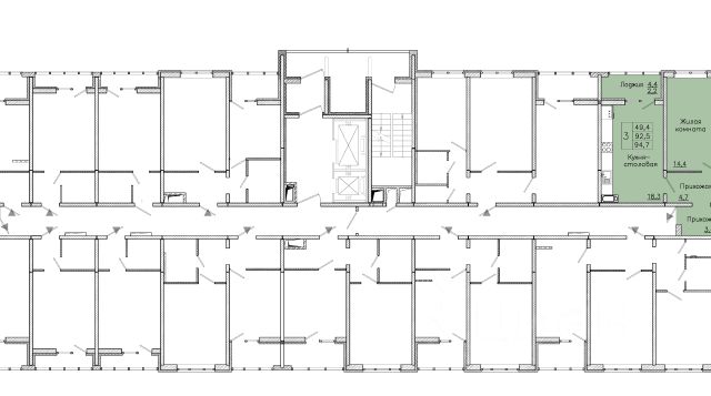
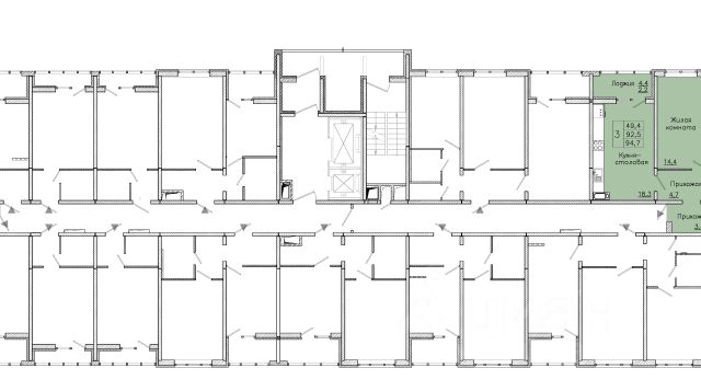
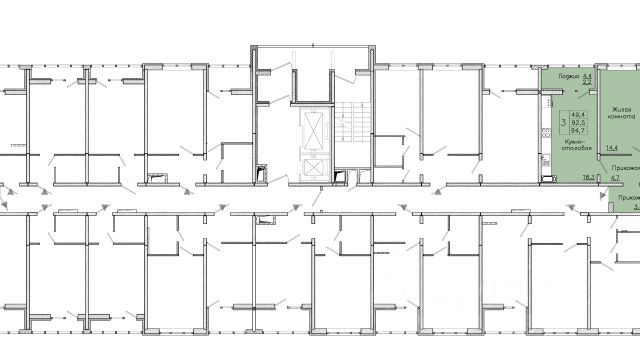
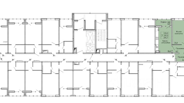
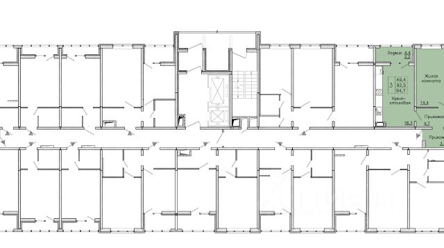
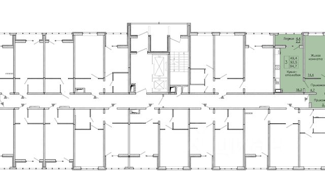
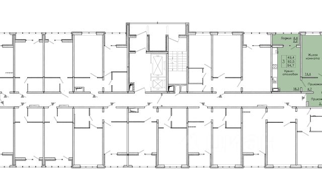
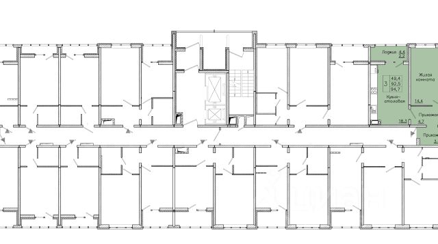
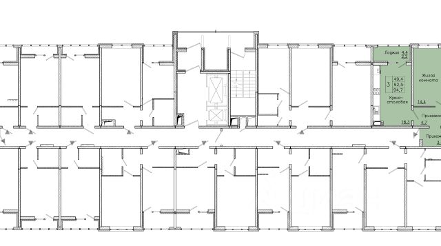
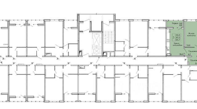
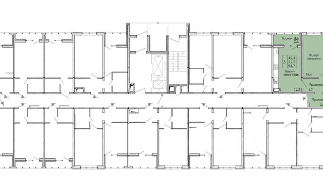
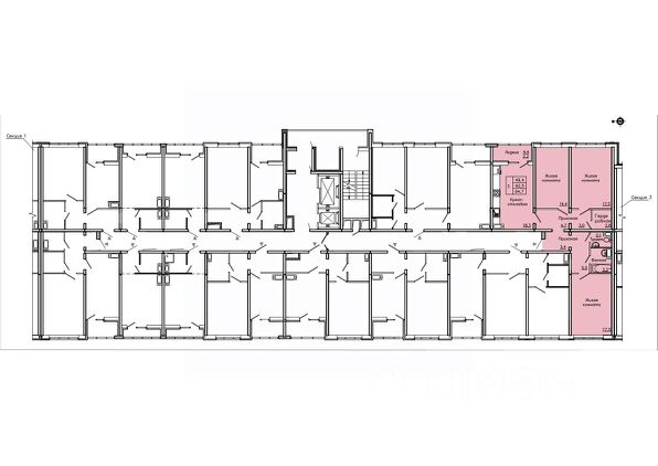
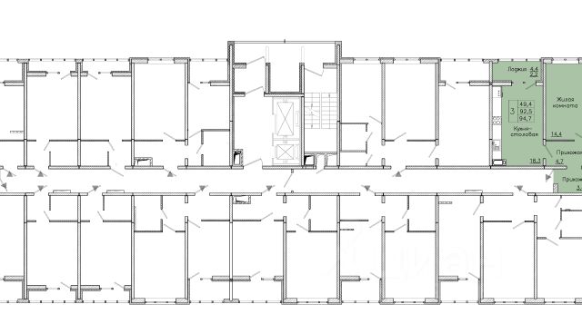
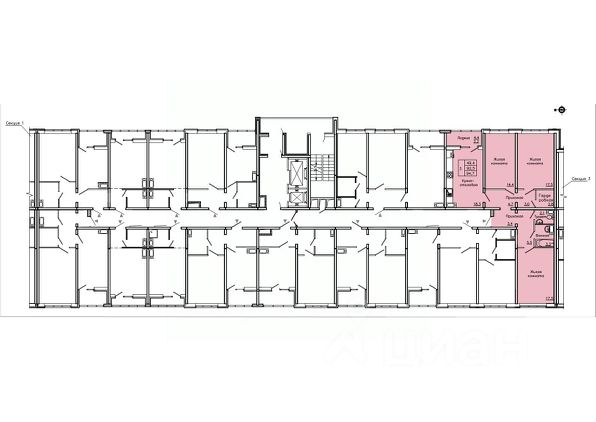
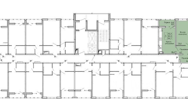
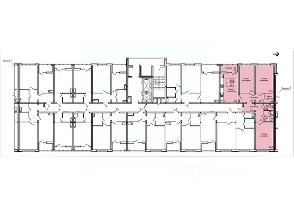
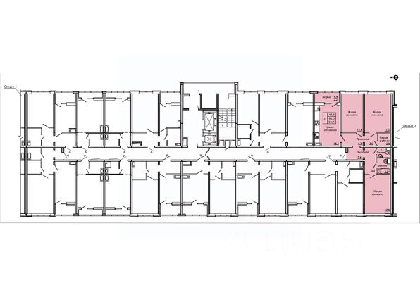
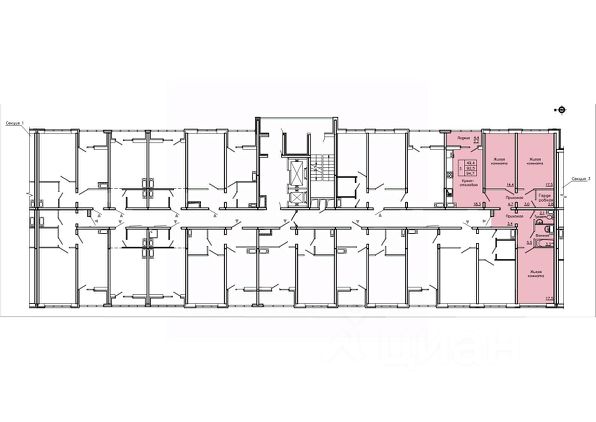
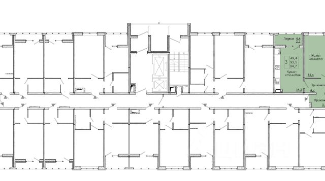
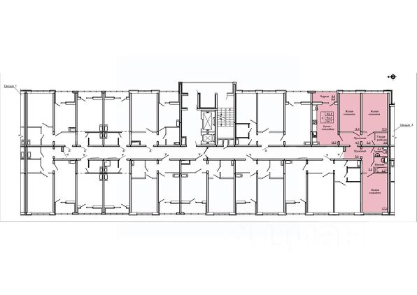
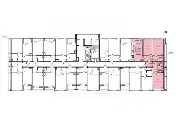
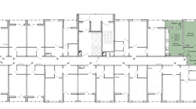
Большая кухня-гостиная, Гардеробная, Спальни на разные стороны. Микрорайон Боровое крупный жилой массив, расположенный в экологически благоприятном северо-восточном районе города Воронежа. Жилой комплекс располагает собственной инфраструктурой и сервисами и расположен в особенном, живописном месте у реки по соседству с пляжем и сосновым лесом. Микрорайон Боровое несомненно понравится тем, кто выбирает для себя и своей семьи комфорт современного города. В жилом комплексе открыты три детских сада, офис врачей общей практики, развивающие центры для детей, в шаговой доступности расположена новая школа. В микрорайоне ведется строительство ТРЦ площадью 25 000 кв.м. с зоной фудкорта, кинозалами и детским развлекательным центром. Особенности проекта: Транспортная доступность / Развитая инфраструктура / Школа и детские сады / Спортивные площадки для активных видов отдыха / Панорамные виды из окон и живописные пейзажи / Городской пляж и лес рядом с ЖК / Квартиры с классической планировкой и квартиры евроформата / Качественная предчистовая отделка / Две концепции 100 % отделки квартир. Расположение ЖК: Железнодорожный район г. Воронежа. Примерное время в пути до центра города: Авто: 20 минут до проспекта Революции, Ж/д: 21 минута до Площади генерала Черняховского. Инфраструктура микрорайона Боровое: Для детей: Средняя общеобразовательная школа 64, 3 детских сада (Детский сад 177, Детский сад общеразвивающего вида 28, Детский сад 69), 5 детских развивающих центров, студия творчества. Здоровье: Амбулатория 4, Здоровый ребенок Доктор Мишка, филиал Боровое, Invitro, диагностический центр, медицинская лаборатория, Эверест, ветеринарная клиника Новая Эра, медицинский центр, Твоя улыбка, стоматологическая клиника. Спорт: Ferrum фитнес, фитнес-клуб; СК Самбо-36, спортивный клуб; секция Найсстретчинг, спортивный клуб; Indance -танцевально-спортивная школа; Dojo -клуб карате; открытая хоккейная площадка. 14 салонов красоты. Магазины: Пятёрочка, Красное&белое, Магнит, Магнит косметик, Семь дней, Лидер (строительный магазин), Flores, магазин цветов, Рыболовный магазин, Боровое торговый центр. Пункты выдачи: Wildberries, Яндекс Маркет, Ozon. Прочее: МФЦ "Мои документы"; автошкола; Мастерская домашнего текстиля. Условия покупки: Действует льготная ипотека. Помощь в получении одобрения от банков. Подробную информацию можно получить по телефону и в офисе продаж по адресу: город Воронеж, ул.Сельская,д.2/2. г.Воронеж. Многоквартирный многоэтажный жилой дом поз.30 в мкр "Боровое" по адресу: г.Воронеж, ул.Федора Тютчева, земельный участок 107. Застройщик ООО СПЕЦИАЛИЗИРОВАННЫЙ ЗАСТРОЙЩИК "ВМУ-2". Реализация квартир осуществляется застройщиком по договорам участия в долевом строительстве с использованием счетов эскроу. Проектная декларация на сайте https://наш.дом.рф ID дома: 60481. Информацию о квартирах и их стоимость уточняйте у менеджеров отдела по работе с недвижимостью.
















































































