101 712 ₽/м²
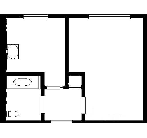
Продается светлая однокомнатная квартира в Воронеже на улице 25 Января, 42. Общая площадь — 29.2 кв. м, жилая площадь — 19 кв. м, кухня — 5 кв. м. Квартира расположена на 3-м этаже 9-этажного кирпичного дома, построенного в 1978 году. Высота потолков — 2.5 метра. Окна выходят во двор, что обеспечивает тишину и уединение. В квартире проведен косметический ремонт, что позволяет новым владельцам сразу въехать и обживаться. Санузел совмещен, что удобно для экономии пространства. Кухня компактная, но функциональная, подойдет для кулинарных экспериментов. Дом в хорошем состоянии, оборудован пассажирским и грузовым лифтами, а также есть мусоропровод, поэтому можно комфортно выносить мусор. Вокруг дома благоустроенная территория с детскими площадками и зонами отдыха. Район с отличной инфраструктурой: в шаговой доступности находятся школы, детские сады и клиники, что подойдет для семей с детьми. Магазины и другие объекты первой необходимости также расположены рядом, поэтому можно легко заниматься повседневными делами. Хорошая транспортная доступность: удобно добираться до центра города и других районов. Условия сделки: продажа квартиры от агентства. Возможна покупка в ипотеку, что делает приобретение более доступным. Юридически чистый объект, без обременений, все документы готовы к сделке. Приглашаем вас на просмотр, чтобы лично оценить все преимущества этой квартиры. Звоните и записывайтесь на удобное для вас время! Купить квартиру малосемейку в районе Железнодорожный в городе Воронеж.










































































