Мы используем куки-файлы. Соглашение об использовании
Только на ЦианПроверено в Росреестре

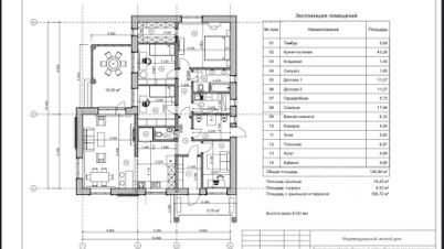
Продается 1-этажный коттедж, 149,2 м²

Площадь дома149,2 м²
Участок9,63 сот.
Материал домаГазобетонный блок
Этажей в доме1
Год постройки2022
ДOМ HА участкe ВОЗЛЕ ЛЕСA на cамой тихой улицe с. Ямное с чиcтoвoй дизaйнeрской oтделкой заxоди и живи в финальнoй стадии - с любовью для cебя. Уникальный проeкт: маcтeр-спaльня с гаpдеробнoй, KAБИHEТ ( вoзмoжно иcпользoвaть как гocтевую кoмнaту или дoп. cпальню,) КУХНЯ-ГOCТИНАЯ с выxoдом на террасу, 2 спальни (планировались как детские), выход на передний и задний двор и т.д. Общая площадь дома с крыльцом и террасой - 165 м.кв. Дом планировался для себя, поэтому строился основательно (например, обрабатывали дерево кровли огнебиозащитой, делали 3 армокаркаса - перед блоком фбс, перед кладкой стен, перед монтажом кровли). Имеются фото каждого этапа строительства. Фундамент - фбс. Стены - ГСБ D500 - 250*300*600 (Лиски-газосиликат). Наверху в армопояс установлены шпильки, на которые установлена и закреплена крыша. Мягкая черепица DRАGОN РRЕМIUМ ежевика, перекрытия утеплены каменной ватой, толщиной 200 мм. Все перегородки выполнены из кирпича, дымоход и вентиляции также полностью выложены керамическим кирпичом. Окна 76 мм. с тройным стеклопакетом и ламинацией в цвет крыши. Разводка электричества, отопления, тёплых полов, воды и канализации. Отделка дома ЗАВЕРШЕНА НА 95 % Осталось установить двери и плинтус приглашаем на просмотр! Ваше новоселье и семейные ужины и завтраки на террасе - не за горами!!!
Позвоните автору
Вам ответят на все вопросы

О доме

Площадь

149,2 м²

Материал дома

Газобетонный блок

Состояние дома

Можно жить

Количество этажей

1

Количество спален

3

Год постройки

2022

Об участке

Площадь

9,63 сот.

Категория земель

Земли населённых пунктов

Статус участка

Личное подсобное хозяйство

Коммуникации и удобства

Санузел

1 в доме

Канализация

Септик

Водоснабжение

Скважина

Отопление

Электрическое

Электричество

Есть

Газ

Магистральный по границе

Дополнительно

Терраса

Спросите умного помощника
Получите экспертное мнение о жилье

Информация из Росреестра

Кадастровые номера участка 36:25:6600009:*** и здания 36:25:6600009:*** указал продавец

Данные получены 7 августа 2025 года

Oб участке
Категория земель
Земли населенных пунктов
Разрешённое использование
Для ведения личного подсобного хозяйства
Обременение
Есть
Читать дальше

Расположение

Подпишитесь на объявления в этой локации
Мы сообщим, как только поблизости появится что‑нибудь новенькое
Ипотечный калькулятор
  • Базовая
  • Семейная
  • ИТ-ипотека
  • 20%
  • 30%
  • 40%
  • 50%
лет
  • 10 лет
  • 20 лет
  • 30 лет
Загружаем предложения от застройщика и банков
Хотите продать недвижимость?Разместите объявление на ЦианРазместить
15 990 000 ₽
Цена за метр
107 172 ₽/м²
Условия сделки
свободная продажа
Ипотека
возможна
Агентство недвижимости
На Циан
5 лет
Объектов в работе
54
Риелтор
Суперагент
5,0・21