Хорошая цена
С мебелью
5 100 000 ₽
118 605 ₽/м²
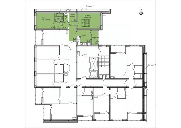
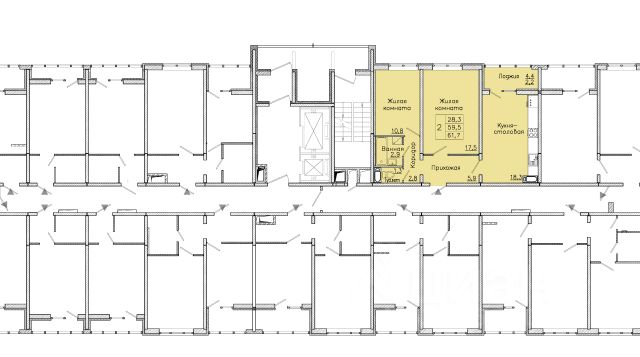
Продаётся уютная евродвушка в новом доме микрорайона Боровое. Экологически чистый район с собственной рекой Усманкой и пляжем прямо рядом — отличное место для прогулок и отдыха. В шаговой доступности вся необходимая инфраструктура: школа, два детских сада, поликлиника, магазины. Транспортная развязка позволяет без проблем добираться до любой точки города. Квартира полностью готова к проживанию — продаётся с мебелью и бытовой техникой. Юридическая чистота подтверждена: два взрослых собственника, полная сумма в договоре. Идеальный вариант для тех, кто ценит комфорт и свежий воздух в черте города.
Код пользователя: 188469
Номер в базе: 12780993







































































