


121 830 ₽/м²
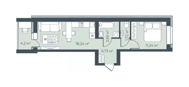
Жилой дом комфорт-класса в Богучаре Комплекс состоит из двух кирпичных домов комфорт-класса. Закрытая дворовая территория обеспечивает безопасное пространство для отдыха детей и взрослых. Безбарьерная среда во дворе и местах общего пользования обеспечивает удобство для пожилых людей и родителей с колясками. Помещения для колясок, велосипедов и спорт-инвентаря в каждом подъезде. Дизайнерский ремонт мест общего пользования. Улучшенная базовая отделка квартир с полу-сухой стяжкой, гипсовой штукатуркой и разводкой электричества. Функциональные планировки - эффективно используется площадь квартиры, просторные кухни и гостиные, ниши под шкафы, предусмотрены гардеробные и постирочные комнаты. Адрес: город Богучар (Воронежская область) Высота: 9 этажей Квартиры: 186 квартир в первой очереди Материал: кирпич Площадь: 9 779 кв.м жилья в первой очереди Продам квартиру первичка в Богучарском районе Воронежской области.




















































































































