

126 200 ₽/м²
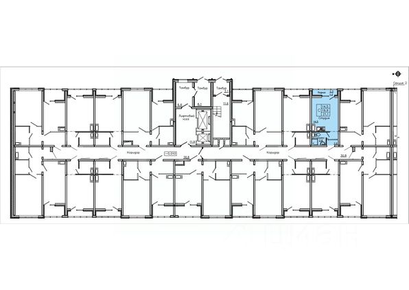
Продается студия 28,82 кв.м. на 16 этаже. Жилой Дом "ЧЕХОВ" расположен в Железнодорожном районе города Воронежа, который в 2022 году стал самым лучшим районом в городе для проживания. Он занял северо-восточную часть и протянулся вдоль левого берега. Дом комфорт-класса, строящийся по монолитной технологии. Почему "Чехов" - это удобно: • Спокойный район, жилой комплекс удален от оживленной магистрали; • Собственный паркинг; • Большой благоустроенный двор с детским городком и собственным вишневым садом; • Развитая социальная инфраструктура: школы, детские сады, учреждения здравоохранения, магазины. • Неподалеку есть набережная и смотровая площадка с видом на реку Воронеж; • В 2022 зарегистрировано 3950 компаний, можно выбрать работу в любой сфере; • Крупные торговые сети, маркеты, аптеки в шаговой доступности, а так же ТРЦ Максимир ; • Налажены маршруты общественного транспорта; • Места для досуга и отдыха: фитнес-клубы, батутный центр и прочее. В квартире выполняется качественная предчистовая отделка, возможно приобрести и чистовую отделку. Благоустройство прилегающей территории включает в себя организацию зон отдыха, детский городок и спортивные площадки, автостоянка, а также вишневый сад и комплексное озеленение. В непосредственной близости расположены образовательные учреждение и магазины. Инфраструктура района: • Большое разнообразие среднеобразовательных заведений (новые школы), спортшколы и детские садики, поликлиники, фитнес клубы и прочее что необходимо для комфортной жизни в шаговой доступности; • Комфортная социальная среда. Квартиры с возможностью выбора отделки — стандарт, стандарт-плюс и бизнес. Покупая квартиру в ГК Развитие, вы получаете дополнительно БЕСПЛАТНО: - помощь в одобрении и получении ипотеки с минимальной процентной ставкой; - ПОЛНОЕ ЮРИДИЧЕСКОЕ СОПРОВОЖДЕНИЕ от сбора документов до регистрации права собственности; - Консультация и подбор удобного объекта в любое УДОБНОЕ ВРЕМЯ; Возможно, вы искали: купить квартиру студию, купить однушку, купить двушку, купить трешку, акции и скидки на новостройки, квартира в на левом берегу, купить квартиру на левом берегу, купить квартиру в ипотеку на левом берегу, квартира в левобережном районе, купить квартиру в левобережном районе, новостройка в левобережном районе, новостройка на левом берегу, купить квартиру в новом доме, купить квартиру в Воронеже, квартира ЖК Чехов, купить квартиру в ЖК Чехов, стоимость квартиры на левом берегу, квартира в Воронежской области, купить квартиру в Воронежской области, квартиры в новостройке с паркингом, квартиры от застройщика без посредников, недвижимость Воронеж, инвестиции купить квартиру в новостройке, новостройки сменить квартиру, квартиры в строящемся доме, новостройки с отделкой, первичное жилье в новостройке, квартиры в новостройке без посредников, новостройки с рассрочкой, квартиры в новостройке с большой площадью, новостройки эконом класса, новостройки комфорт класса, новостройки бизнес класса, купить квартиру в новом доме.















































































