97 303 ₽/м²
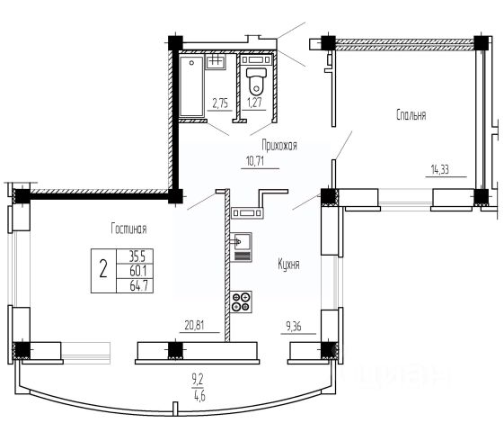
Продаётся 2-комнатная квартира в сданном доме (Лётчика Филипова, 4 (позиция 3)), срок сдачи: IV-кв. 2024, общей площадью 82.3 кв.м., на 11 этаже. Расположение, транспортная доступность Пятнадцать 16-этажных корпусов жилого комплекса "Спутник" занимают территорию около 16 га вблизи окружной дороги (улицы Антонова-Овсеенко, Ломоносова) и Московского проспекта (магистраль А-134 - подъездная автодорога к федеральной трассе М-4 "Дон"). Жилой квартал расположен в северной части города, рядом с лесным массивом Воронежской нагорной дубравы. Комплекс граничит с коттеджным поселком "Лесная поляна", гаражным кооперативом и фруктовым садом. На расстоянии около 4 км находится пляж на берегу Воронежского водохранилища. По Московскому проспекту можно за десять минут доехать до международного аэропорта, за двадцать минут - до железнодорожного вокзала или административного центра города. В шаговой доступности находятся остановки общественного транспорта - 35 маршрутов в центр Воронежа, до вокзала, автостанции, аэропорта, в близлежащие районы и пригороды. Инфраструктура Внутри жилого комплекса построен детский сад на 280 мест, спортивные площадки для занятий гимнастикой и игр в волейбол, баскетбол и мини-футбол. Планируется открытие общеобразовательной школы на 1224 ученика. По соседству работают супермаркет "Магнит", школа с бассейном и гимназия. Вблизи ЖК "Спутник" расположены спорткомплекс "Олимпик", теннисный клуб "Адмирал" (с катком, бассейном и теннисными кортами), областная клиническая больница 1. Недалеко находятся торговый центр "Московский проспект" (с гипермаркетом "Лента"), сити-парк "Град", рынок "Воронежский". Практически в любой район города можно доехать на автобусе или маршрутном такси, которые останавливаются в десяти минутах пешком от комплекса. Надежность застройщика Проект комплексной застройки "Спутник" у Московского проспекта реализует ООО предприятие "ИП К.И.Т.", основанное в 1991 году. Компания начинала с производства сетки "Рабица", и за два десятилетия превратилась в крупную строительную организацию. Возведение первого жилого дома было начато в 1992 году. Предприятие владеет заводом по производству газосиликатных блоков, имеет собственную архитектурную мастерскую, производственную базу и крановое хозяйство. На заводе "Техоснастка" выпускаются лифты. Для обслуживания построенных домов создана собственная управляющая компания. Архитектура Общая площадь участка, выделенного под микрорайон ЖК "Спутник", превышает 21 га. Конструктивная схема здания - рамно-связевая. Особенность типовой серии 1.120.1-1с/89 - прочный каркас здания: колонны стянуты между собой стальными тросами, которые укладывают в ригели и заливают бетоном. Наружные стены имеют толщину 61 см, выложены газосиликатными блоками и облицованы полнотелым кирпичом. Высота потолков в квартирах - 2,7 м. Квартиры предложены с черновой отделкой или с ремонтом под ключ: с обоями, линолеумом, входной металлической и межкомнатными дверями, электрической плитой и сантехникой. Разв















































































