


142 410 ₽/м²
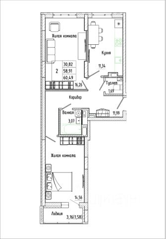
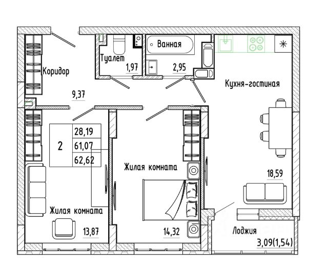
ЖК "Алые Паруса" — жизнь у воды ул. МОПРа, 1б Левобережный район Монолит, 17 этажей | комфорт Сдача: II кв. 2029 Жилой комплекс рядом с парком "Алые Паруса" и водохранилищем. До центра — 1015 минут. Преимущества: • Локация у воды и парка • Видовые квартиры • Благоустроенный двор • Прогулочные зоны • Подземный паркинг Квартиры: 1-, 2- и 3-комнатные квартиры с продуманными планировками и панорамными окнами. Отделка: Черновая / предчистовая / чистовая Инфраструктура: Парк, магазины, школы, детсады, транспорт в шаговой доступности. Звоните — подберём квартиру под ваш запрос. Цена указана при 100% оплате. Не оферта. * Стоимость квартир указана при оплате за счет ипотечных средств. Не является публичной офертой.



























































































































































