


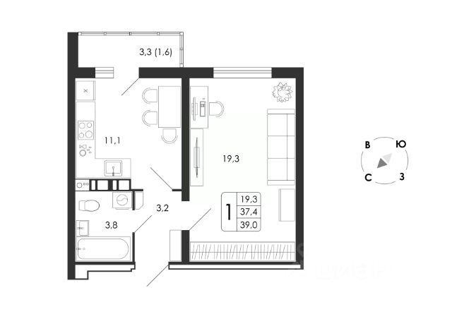
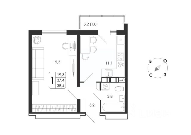
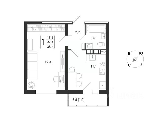
118 870 ₽/м²
Жилой комплекс "Счастье" - уютный квартал с тематической концепцией благоустройства напротив сити-парка "Град". - Проектом предусмотрено 14 жилых домов (4 уже сданы) с использованием технологии объемно-блочного домостроения - Комплекс из 7-ми этажных жилых домов - Квартиры с чистовой и черновой отделкой - Лоджии с панорамным остеклением - Надежная тепло- и звукоизоляция - Входы в подъезды с панорамным остеклением, расположены на уровне земли - Проектом предусмотрены детский сад, магазин и собственный парк - Важные объекты социальной инфраструктуры рядом: детский сад "Рождественский", супермаркеты, сити-парк "Град", "Леруа Мерлен", физкультурно-оздоровительные комплексы и конноспортивный клуб - Система видеонаблюдения и возможность дистанционного управления домофоном со смартфона - Новая школа в п. Ямное в 10 минутах езды - Тематическая концепция благоустройства - 4 тематических квартала с целью создания сбалансированной среды для жизни: кварталы семья, спорт, природа и путешествия. - Безбарьерная среда по всей территории - Остановки общественного транспорта и удобный выезд на Московское шоссе - 5 минут езды от сити-парка "Град", 30 минут - до центра города на авто Трейд-ин. Действующие ипотечные ставки и акции уточняйте в офисе продаж застройщика. Услуга собственного менеджера по ипотечному кредитованию - удобная опция для клиентов компании. Специалисты обеспечат вам комфортные условия получения кредита и будут рядом на каждом этапе, возьмут на себя все взаимодействие с банком. Шоу-румы на территории ЖК "Счастье" позволяют своими глазами увидеть, как будет выглядеть ваша квартира, построенная по технологии завода "ВЫБОР-ОБД": оценить габариты, качество отделки и возможности по расстановке мебели. Квартира от застройщика! Строительная компания "ВЫБОР" предлагает купить однокомнатную квартиру в жилом комплексе "Счастье" в Воронеже. Успей приобрести квартиру по выгодной цене! Строительная компания "ВЫБОР" — один из ведущих застройщиков в Центрально-Черноземном регионе. Квартиры в новостройках от застройщика.



















































































