136 250 ₽/м²
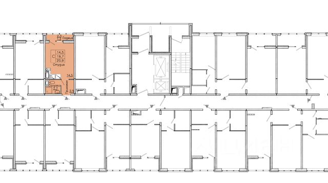
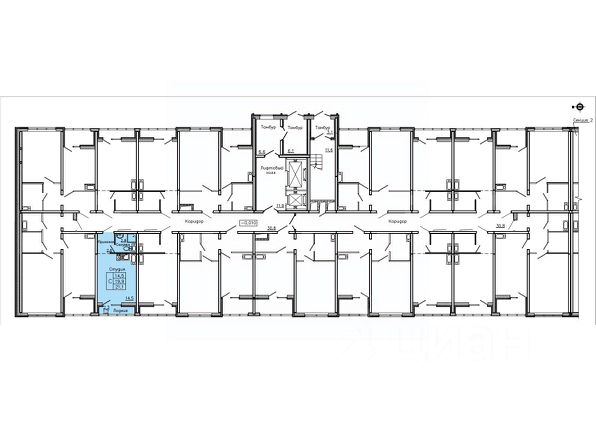
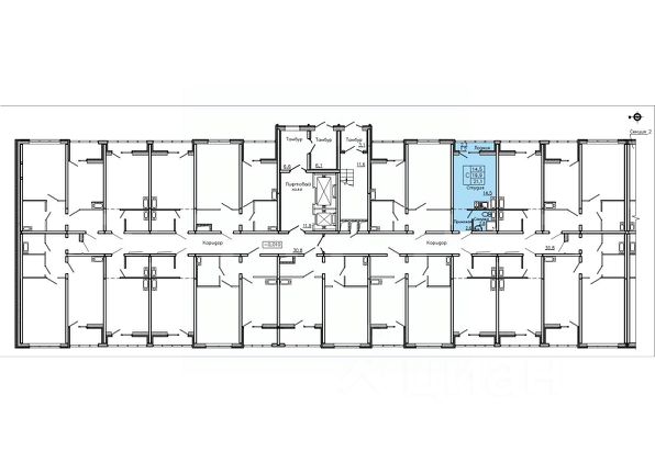
Продаётся студия в сданном доме (Фёдора Тютчева, 105 (Позиция 29, этап 1)), срок сдачи: IV-кв. 2024, общей площадью 21.1 кв.м., на 9 этаже. Жилой комплекс "Микрорайон Боровое" - представляет собой комплексную застройку, возводимую в экологически чистой зоне Железнодорожного района Воронежа. Комплекс расположен на пересечении улиц Федора Тютчева и Сельской. Жилые дома в "Боровом" строят высотой от 9 до 25 этажей. Каркасы домов возводят из монолитного железобетона, материал стен блоки. Крупномасштабный жилой комплекс со своей развитой инфраструктурой рядом с трассой "Дон", в отдалении от промышленных предприятий, роскошными пейзажами соснового бора, березовой рощи и древней Троицкой церкви выбрали для комфортной жизни уже сотни воронежцев.





































































